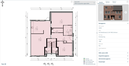
Sommige modellen zijn gemodelleerd over meerder panden, omdat er ruimtes over panden worden gedeeld. De ruimtes die niet behoren bij het adres zijn aangemerkt als NTR (niet toegankelijke ruimte). Deze ruimten worden niet meegenomen bij GO en hebben voor de verhuurtekening nul punten.
Let Op: Belangrijk is dat de NTR ruimtes in het model blijven voor correcte rapportages.

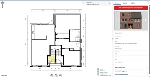
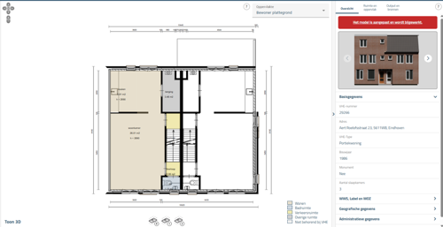
De plattegronden zijn het beste te beoordelen in de bewonersweergave of plattegrond brochure. Zo is voor dit model op begane grond alleen de trapopgang bereikbaar en is op de 2e verdieping het dakterras bereikbaar van het buurpand.


