De onderliggende techniek voor het genereren van allerlei verschillende plattegrondweergaven voor NEN2580 en WWS-huurpunten is het Ruimteklassen-systeem voor Smart Twin. Elke ruimte in het model krijgt automatisch een volume, maar niet automatisch de juiste functie. Het is belangrijk de juiste ruimteklasse/functie te koppelen omdat op basis hiervan alle berekeningen en plattegrondweergaven worden gemaakt voor de verschillende weergavedoelen van een corporatie. Nadat de juiste ruimteklassen zijn gekoppeld, spreken we van een echt Smart Model.
NB: Ruimteklassen kun je in de interface van ruimtes kiezen bij Ruimtefunctie. (Ruimteklasse en Ruimtefunctie zijn synoniem aan elkaar).
Het is ook belangrijk ruimten onder een schuine kap te bekijken en te classificeren. Via de 2D-weergave 'Controle Smart Twin' worden ook 'verborgen' ruimten zichtbaar. Bij de weergave 'Controle Smart Twin' worden tevens ruimteklassen getoond, wat de check eenvoudig maakt.
.
Voor het bepalen van vierkante meters is gebruikgemaakt van het meest actuele Waarderingsstelsel en meetinstructie:

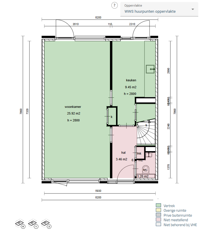
Belangrijke richtlijn voor het classificeren van ruimten is de functie die deze ruimte heeft voor WWS-huurpunten. In WWS wordt onderscheid gemaakt tussen:
Vertrek: woonkamer, slaapkamer, woon- en slaapkamer, keuken. Vertrekken kleuren groen in WWS en er wordt 1 pnt/m² gerekend
Overige ruimte: interne bergruimte, technische ruimte, bijkeuken, voorzolder. Een Overige ruimte kleurt geel in WWS en is 0,75 pnt/m².
Verkeersruimte: hal, gang, overloop. Een Verkeersruimte kleurt rood in WWS en is 0 pnt/m², meer over verkeersruimten lees hier.

Uitganspunten voor een model:
Ruimtenamen op een (digitale) bouwtekening/verhuurplattegrond zijn een goede indicatie. Smart Twin kent daarnaast specifieke ruimteklassen (woon/slaapkamer, voorzolder, vliering, ntr, etc.).
Hieronder aanvullende aandachtspunten voor het aangeven van ruimteklassen in modellen:
Slaapkamer/ Woonkamer: Elk model moet minimaal één 'Woonkamer' en één 'Slaapkamer' hebben, of bij kleine studio's een (gecombineerde) 'Woon- en slaapkamer', lees hier.
Hal: De verkeersruimte achter de voordeur is Hal, overige verkeersruimten zijn Gang of Overloop, lees hier.
Niet toegankelijke ruimte: elke ruimte zonder toegang (deur/luik, (vlizo)trap) is een 'Niet toegankelijke ruimte' (ntr). Ook een zolderruimte met alleen maar een toegangsluik en geen trap of vlizotrap wordt een 'Niet toegankelijke ruimte'
Schacht: alle kanalen, schachten en staande leidingkokers (standleiding) moeten worden aangemerkt als Schacht (zodat ze niet worden gearceerd).